8-800-775-39-89

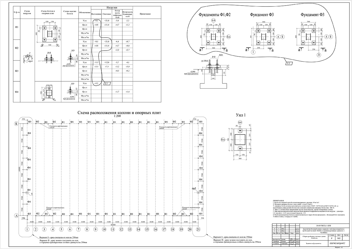
Завершена разработка проекта КМ футбольного манежа 44х82м

Компания МС Билдингс завершила разработку рабочей документации стадии «КМ» будущего футбольного манежа 44х82м.

Объект будет расположен в г. Челябинск.

Компания МС Билдингс предлагает услуги по разработке рабочей документации марки КМ (конструкции металлические). Квалифицированные инженеры-конструкторы нашей компании с соблюдением сроков проектирования и на должном качественном уровне выполнят для Вас полный объем проектных работ по рабочей документации КМ, которая является основой для разработки чертежей марки КМД (конструкции металлические деталировочные) с последующим их изготовлением и передачей на площадку строительства.

КМ - это один из самых важных разделов проектной документации для строительства объекта, если планируется построить здание с использованием несущих металллических конструкций.

Компания МС БИЛДИНГС разрабатывает и оформляет проектную документацию стадии КМ в строгом соотвествии с ГОСТ 21.502-2007 "Правила выполнения проектной и рабочей документации металлических конструкций".


Исходные данные для разработки проекта КМ

Для начала выполнения работ по проектированию документации марки КМ, Заказчику необходимо представить техническое задание и исходные данные, такие как:

- Архитектурный раздел проекта с планами, фасадами и разрезами будущего здания;

- Возможные технологические нагрузки на проектируемое сооружение с учетом климатических, сейсмических и гидрогеологических особенностей района строительства;

- Чертежи смежных разделов конструкций АР и КЖ


Стоимость проектирования документации КМ

Стоимость каждого КМ проекта индивидуальна и рассчитывается на основе нескольких условий, например:

- Архитектурная сложность и нестандартность решений будущего объекта (стоимость разработки проекта КМ для прямоугольного здания и криволинейного при одинаковой площади объектов будет отличаться);

- Площадь объекта;

- Сроки разработки проектной и рабочей документации.


Сроки разработки проекта КМ

Сроки работ оговариваются перед началом проектирования, только после получения от Заказчика полного пакета исходных данных, описанных выше.

Прежде всего, сроки разработки проекта КМ зависят от сложности архитектурного облика будущего объекта, полноты предоставленных исходных данных и смежных разделов проекта.

Для ускорения процесса разработки проекта КМ и передачи документации на разработку чертежей КМД, имеется возможность поэтапной выдачи документации.


Технологии разработки КМ проекта

Все проекты КМ выполняются в 3D на автоматизированных программных комплексах, таких как Tekla Structures, способных автоматически генерировать спецификации металлопроката, что серьезно ускоряет процесс разработки проекта КМ. Работа на 3D модели значительно упрощает работу с проектом и помогает избежать ошибок, связанных со схематикой работы в двухмерной плоскости