8-800-775-39-89

Завершена разработка проекта КМ для объекта в г. Северо-Курильск

Компания МС Билдингс завершила работы по разработке проектной документации раздела «КМ» будущего спортивного зала. Которая будет построена в г. Северо-Курильск, расположенный на курильском острове Парашумир.

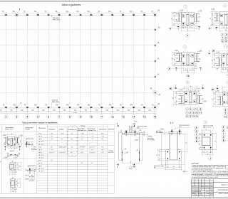
Сборно-разборное тентовое арочное здание расположенное в осях 1-16/А-Ж и имеет размеры по крайним осям 47,5 х 28 м. Отметка верха покрытия 13,8 м. Поперечные рамы однопролетные, шаг расположения 3,17 м, пролет 28 м. Опирание колонн на фундамент - шарнирное. Сопряжения арок и колонн - жесткое. Схема покрытия - беспрогонная. В поперечном направлении общая устойчивость конструкции обеспечивается за счет жесткого сопряжения арок и колонн. Устойчивость арок из плоскости по верхнему поясу обеспечивается связями между верхними и нижними поясами. Устойчивость из плоскости по нижнему поясу обеспечивается системой связей и распорок.

Типоразмеры применяемых конструкций сведены к необходимому минимуму, что позволяет ускорить монтажные работы. Оптимальное решение, учитывающее одновременно стоимость металла, изготовление и монтаж, дает типизация конструкций.

Нормативная ветровая нагрузка – 85 кг/м2.

Нормативная снеговая нагрузка – 400 кг/м2.

Расчетная сейсмическая нагрузка - 9 баллов.


Проектирование металлических конструкций в зонах с расчётной сейсмической нагрузкой 9 баллов осуществляется в соответствии с требованиями свода правил СП 14.13330.2018 «Строительство в сейсмических районах». Этот документ устанавливает требования к расчёту, объёмно-планировочным решениям и конструированию элементов зданий и сооружений, обеспечивающих их сейсмостойкость.

При проектировании необходимо учитывать нормативные ссылки, такие как ГОСТ 30247.0-94, ГОСТ 30403-96, ГОСТ 14098-91, ГОСТ Р 53292-2009 и другие. Также следует соблюдать требования к зонам пластических деформаций и локальных разрушений, снижать риск прогрессирующего разрушения сооружения и обеспечивать его «живучесть» при сейсмических воздействиях.

Разработка проекта раздела КМ от компании МС Билдингс — ваш надёжный путь к успешному строительству!

Компания МС Билдингс предлагает профессиональные услуги по разработке проекта раздела КМ (конструкции металлические) для вашего строительного проекта. Мы гарантируем высокое качество, соблюдение сроков и индивидуальный подход к каждому клиенту.


Наши преимущества:

1. Опыт и знания: команда специалистов МС Билдингс имеет многолетний опыт работы в области проектирования металлоконструкций, что позволяет нам предлагать оптимальные решения для вашего проекта.

2. Гибкость и адаптация: мы учитываем все особенности вашего объекта, включая климатические условия, требования к прочности и безопасности, чтобы предложить вам наилучший вариант.

3. Экономия времени и средств: благодаря оптимизации процесса проектирования и использованию современных технологий мы сокращаем время выполнения работ и снижаем общую стоимость проекта.

4. Гарантия качества: наша компания имеет членство в СРО и соблюдает все строительные нормы и правила, что обеспечивает надёжность и долговечность вашей конструкции.

Обращаясь к нам, вы получаете гарантию качества, сроков и спокойствия, так как мы берём на себя полное сопровождение вашего проекта от разработки до практической реализации.