8-800-775-39-89

Завершена разработка проекта КМ будущей ледовой арены в Республике Крым

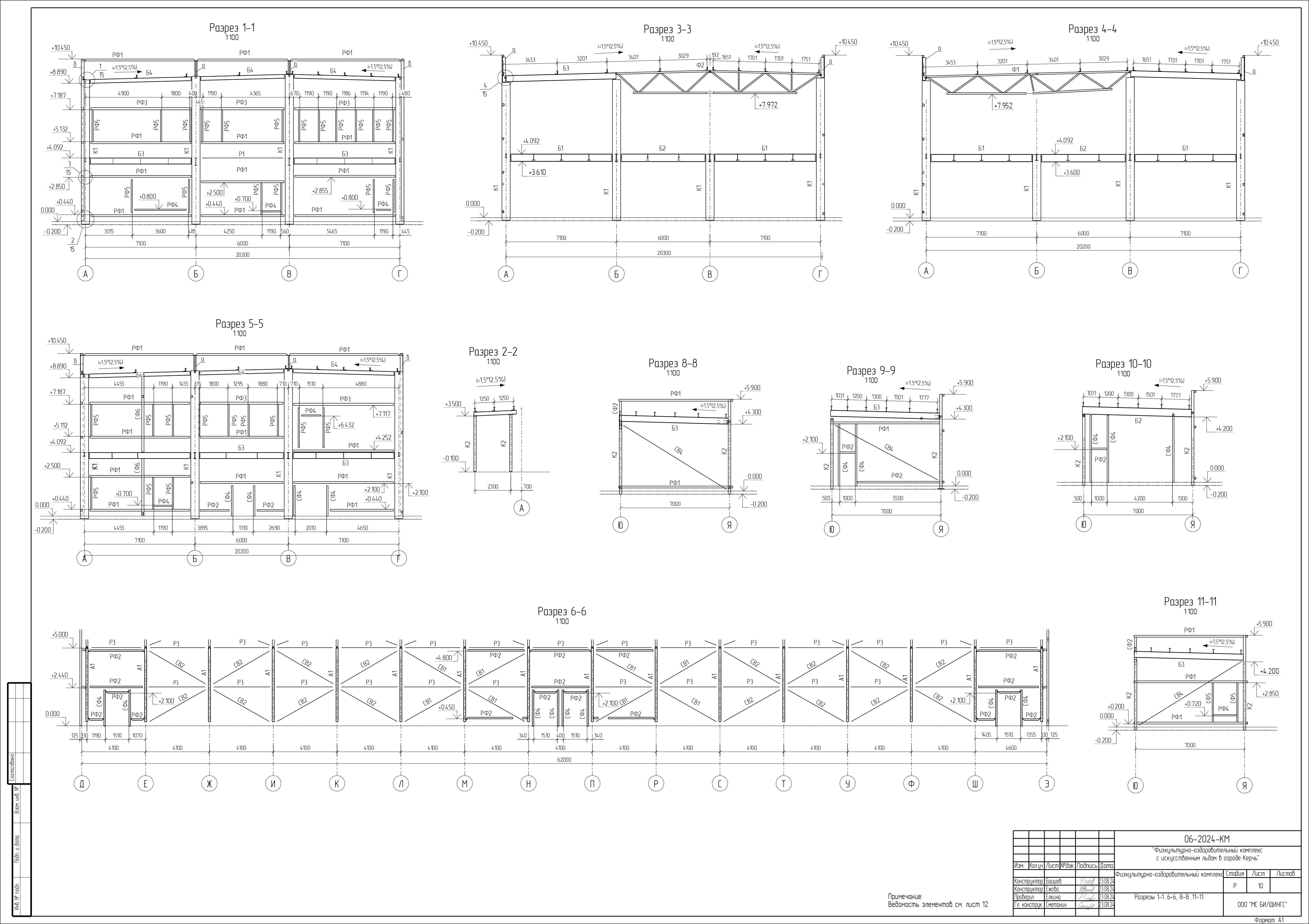
Компания МС Билдингс завершила работы по разработке проектной документации раздела «КМ» будущей ледовой арены. Которая будет построена в г. Керчь. Республики Крым.


Спроектированное здание состоит из трех частей:

1. Сборно- разборного тентового арочного здания расположенного в осях 1-9/Д-Э с размерами по крайним осям 41,0м х 61,6м. Отметка верха покрытия +14,8 м. Поперечные арки однопролетные с шагом 4,1м, пролет 41,0м. Арки имеют жесткое сопряжение с решетчатыми колоннами. Опирание колонн на фундамент - шарнирное. Сопряжение элементов конструкции между собой выполняется из листовой стали. Схема покрытия прогонная. Прогоны разрезные, шарнирно опирающиеся на арки. В поперечном направлении общая устойчивость конструкции обеспечивается за счет жесткого сопряжения арок и колонн. Устойчивость арок из плоскости по верхнему поясу обеспечивается прогонами, связями между прогонами и связями между верхними и нижними поясами. Устойчивость арок по нижним поясам обеспечивается системой вертикальных, горизонтальных связей и распорок.

2. Двухэтажного здания АБК в осях 1-9 /А-Г размерами по крайним осям 42,0 м х 20,0 м. Отметка верха покрытия 10,6 м. Отметка верха перекрытия 4,1 м. Ограждающие конструкции покрытия - минераловатная кровля с мембранным покрытием общей толщиной 250мм по несущему профлисту Н75-750-0,9. Ограждающие конструкции перекрытия: ж/б плита. Колонны зданий запроектированы из стального гнутого замкнутого профиля круглого сечения, на которые шарнирно опираются балки, выполненные из двутавра и фермы. Сопряжение колонн с фундаментом - жесткое. Устойчивость и геометрическая неизменяемость обеспечивается жестким защемлением колонн в фундамент.

3. Здания АБК в осях 5-7 /И-Л размерами по крайним осям 27 м х 7,0 м. Отметка верха покрытия 6,0 м. Ограждающие конструкции покрытия - минераловатная кровля с мембранным покрытием общей толщиной 250мм по несущему профлисту Н75-750-0,9. Колонны зданий запроектированы из стального гнутого замкнутого профиля квадратного сечения, на которые шарнирно опираются балки, выполненные из двутавра. Сопряжение колонн с фундаментом - жесткое. Устойчивость и геометрическая неизменяемость обеспечивается жестким защемлением колонн в фундамент и системой вертикальных и горизонтальных связей.

Особенность данного здания заключается в том, что оно будет эксплуатироваться в районе с 8-ми бальной сейсмикой согласно СП20.13330.2016. 


Особенности проектирования раздела КМ в условиях 8-балльной сейсмики включают:

- учёт возможности сейсмических воздействий, даже если их вероятность мала;

- соблюдение требований к проектированию зданий и сооружений в зонах высокой сейсмичности;

- учёт природно-климатических, гидрогеологических и рельефно-ландшафтных особенностей района;

- использование различных типов сейсмических изоляторов для обеспечения высокой надёжности высотных, уникальных и сложных зданий.


Компания МС Билдингс является разработчиком проектной документации раздела «КМ» (конструкции металлические). Мы специализируемся на проектировании рабочей документации стадий «КМ» и «КМД», предлагая следующие преимущества:

Минимально возможная металлоёмкость конструкций благодаря выбору эффективной расчётной схемы для вашего объекта.

Удобство и высокая скорость монтажа благодаря минимизации применения монтажной сварки при проектировании монтажных узлов.

Использование металлопроката, доступного на рынке на текущий момент.

Этапы проектирования металлоконструкций включают рассмотрение заявки и заключение договора, разработку 3D-модели, чертежей и проектной документации, а также сдачу готового проекта документации. Наши клиенты получают качественный и энергоэффективный продукт благодаря опыту компании и соблюдению всех строительных норм и правил.