8-800-775-39-89

Разработка проектной документации по строительству центра гимнастики


Москва, 2026 г. — Компания МС Билдингс успешно завершила разработку проектной и рабочей документации для объекта «Спортивно-гимнастический комплекс» на территории стадиона «Локомотив» Московской железной дороги. Этот проект является ярким подтверждением экспертизы нашей компании в области проектирования сложных объектов капитального строительства, выходящих за рамки стандартных тентовых решений.


Новый комплекс представляет собой уникальное для столицы сооружение, объединяющее в себе несколько функциональных зон под одной крышей. Общая площадь здания составит почти 9 тысяч квадратных метров.

Архитектурные и конструктивные решения

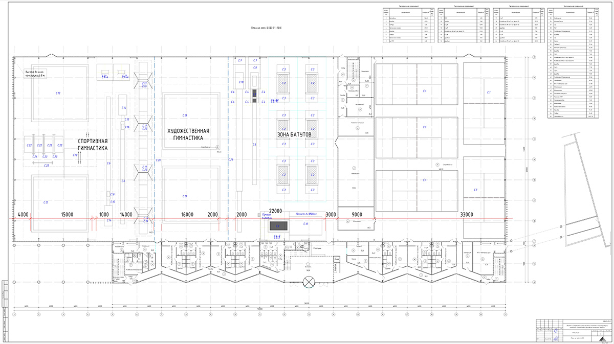
Объект состоит из трех основных строительных объемов, объединенных общим пространством и переходом в существующее здание манежа.

  1. Универсальный спортивный зал (оси 1-21/В-П)

  2. Сердце комплекса — просторный зал размерами 45,0 х 120,0 м и высотой 18,5 м, предназначенный для занятий спортивной и художественной гимнастикой, прыжками на батуте, а также для пяти падел-кортов.

    1. Конструктив: Стальной каркас с беспрогонной схемой покрытия.

    2. Особенности: Колонны рам опираются на фундаменты шарнирно, в то время как торцевые колонны защемлены жестко. Устойчивость ферм и балок из плоскости обеспечивается профлистом по верхнему поясу и системой связей — по нижнему.

  3. Административно-бытовой комплекс (АБК) в осях 6-21/А-В

  4. Трехэтажное здание АБК (10,0 х 96,0 м) станет комфортной зоной для спортсменов, тренеров и посетителей.

    1. Планировка: Здесь разместятся вестибюль с ресепшен и гардеробной, раздевалки на 49 человек, медицинский блок, столовая для персонала, залы настольного тенниса и ОФП, а также кабинеты администрации.

    2. Конструктив: Уникальное решение с комбинированными колоннами: на нижних этажах — из двутавра (жесткое защемление), на третьем этаже — из квадратного профиля (шарнирное опирание), что позволило оптимизировать нагрузку.

  5. Встроенная антресоль и переход (оси 14-16/В-П и ось 21)

Внутри объема спортзала запроектирована двухуровневая встроенная часть высотой 4,2 м. На её кровле расположена зона отдыха с выходом на АБК. Для связи с существующим манежем предусмотрен надземный переход (23,5 х 2,7 м) в осях 21/Б-Г.

Ключевые технико-экономические показатели

  1. Общая площадь здания: 8 868,9 м²

  2. Площадь застройки: 6 445 м²

  3. Строительный объем: 106 047 м³

  4. Высота здания (архитектурная): 19,1 м

  5. Степень огнестойкости: II

  6. Класс пожарной опасности: С0

Компетенции МС Билдингс

Данный объект наглядно демонстрирует возможности компании МС Билдингс в работе с объектами капитального строительства высокой сложности. Мы успешно реализовали:

  1. Проектирование большепролетных конструкций со сложным каркасом.

  2. Интеграцию разрозненных объемов (спортзал, АБК, переход) в единый архитектурный ансамбль.

  3. Разработку узлов и сопряжений различных типов (жесткие и шарнирные) для обеспечения общей устойчивости здания.

Реализация этого проекта подтверждает: МС Билдингс — это не только экспертиза в быстровозводимых тентовых сооружениях, но и надежный партнер в строительстве и проектировании полномасштабных спортивных объектов, отвечающих всем требованиям безопасности и современным стандартам комфорта.

Что дальше?

На текущем этапе проектная документация передана Заказчику. Компания МС БИЛДИНГС готова приступить к следующим стадиям реализации проекта: изготовление металлоконструкций на собственном производстве в г. Набережные Челны, поставка материалов и выполнение строительно-монтажных работ «под ключ».