8-800-775-39-89

Проектная документация в разработке которой участвовала компания МС Билдингс прошла государственную экспертизу

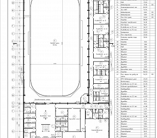
Проект строительства ледовой арены в г. Балабаново Калужской области прошел госэкспертизу.

В рамках подготовки проектной документации строительства ледовой арены компания МС Билдингс разрабатывала раздел «КМ».

Ледовая арена состоит из:

1. Сборно- разборного тентового арочного здания, расположенного в осях 1-10/Е-Ю и имеет размеры по крайним осям 62м х 34,4м. Отметка верха покрытия +12,8м. Поперечные рамы однопролетные, шаг расположения 4,11м, пролет 34,4м.

Ограждающие конструкции кровли здания - Панели тентовые трехслойные с базальтовым утеплителем 200мм. (сертификат соответствия №04ИДЮ 13.RU.C00470, ТУ 23.99.19-002-45384498-2021).

Опирание арок на фундамент - жесткое. Сопряжение элементов конструкции между собой выполняется из листовой стали. Схема покрытия прогонная. Прогоны разрезные, шарнирно опирающиеся на арки. В поперечном направлении общая устойчивость конструкции обеспечивается за счет жесткого сопряжения арок и колонн и жесткого защемления колонн в фундамент. Устойчивость арок из плоскости по верхнему поясу обеспечивается прогонами, связями между прогонами и связями между верхними и нижними поясами.

Устойчивость арок по нижним поясам обеспечивается системой вертикальных и горизонтальных связей и распорок. Типоразмеры применяемых конструкций сведены к необходимому минимуму, что позволяет ускорить монтажные работы. Оптимальное решение, учитывающее одновременно стоимость металла, изготовление и монтаж, дает типизация конструкций.

2. Здания АБК

- в осях 1-13/А-Д имеет размеры по крайним осям 45,3м х 20,8м. Отметка верха покрытия 5,4м. Ограждающие конструкции покрытия- Профилированный лист покрытия марки Н75-750-0,8 по ГОСТ 24045-16.

 - в осях 11-13/Е-Ю имеет размеры по крайним осям 61,65м х 10,4м. Отметка верха покрытия 4,5м. Ограждающие конструкции покрытия- Профилированный лист покрытия марки Н114-750-1,0 по ГОСТ 24045-16.

 - в осях 7-13/Ю-Я имеет размеры по крайним осям 30,5м х 8,1м. Отметка верха покрытия 5,4м. Ограждающие конструкции покрытия- Профилированный лист покрытия марки Н75-750-0,8 по ГОСТ 24045-16.

 Колонны запроектированы из стального гнутого замкнутого профиля квадратного сечения, на которые шарнирно опираются балки, выполненные из двутавра. Сопряжение колонн с фундаментом - жесткое.

Устойчивость и геометрическая неизменяемость обеспечиваются жестким защемлением колонн в фундамент и системой вертикальных и горизонтальных связей. Типоразмеры применяемых конструкций сведены к необходимому минимуму, что позволяет ускорить монтажные работы. Оптимальное решение, учитывающее одновременно стоимость металла, изготовление и монтаж, дает типизация конструкций.

Это уже не первый проект тентового здания компании МС Билдингс с ограждающими конструкции кровли из панелей тентовых трехслойных с базальтовым утеплителем (сертификат соответствия №04ИДЮ 13.RU.C00470, ТУ 23.99.19-002-45384498-2021) прошедший Государственную экспертизу, что говорит о надежности производимых нами зданий, высокой квалификации нашего проектного подразделения, а также эффективности наших гибких ограждающих конструкций.

За надежными тентовыми здания обращайтесь в компанию МС БИЛДИНГС.