8-800-775-39-89

МС Билдингс приступила к строительству современного центра большого и падел-тенниса в Москве

Проект демонстрирует наш комплексный подход: от разработки детальной рабочей документации до практической реализации на объекте.



Состав и особенности объекта

Проект включает два функционально связанных строительных объёма, выполненных по технологии сборно-разборных быстровозводимых конструкций:

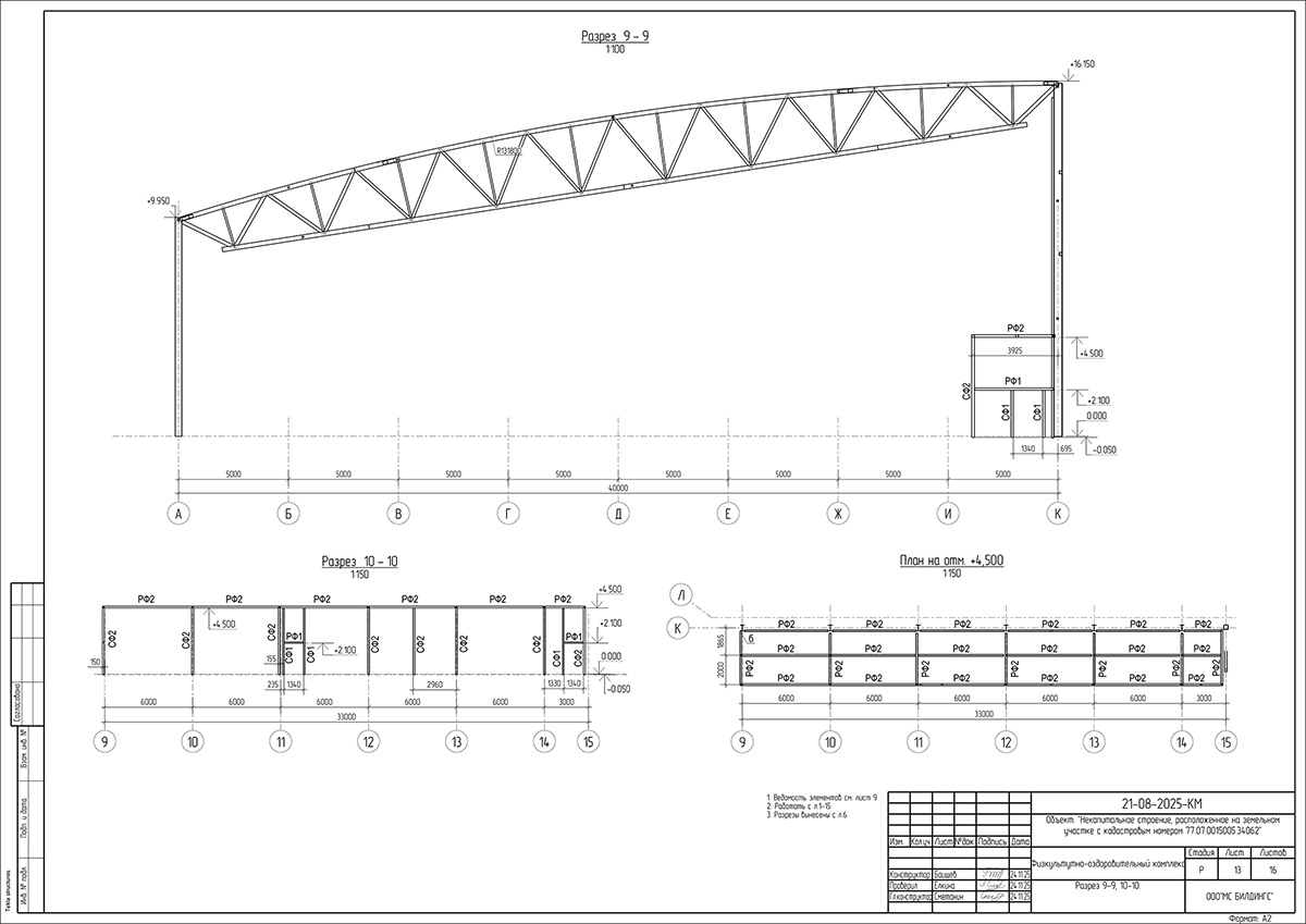
1. Спортивный корпус

· Размеры: 81,0 × 40,0 м

· Высота в коньке: 16,5 м

· Конструктивная схема: однопролётные арочные рамы пролётом 40 м с шагом 6 м, беспрогонное покрытие

· Содержание: 2 корта для большого тенниса и 6 падел-корта

· Ограждающие конструкции:
— Стены — сэндвич-панели толщиной 150 мм с витражными вставками
— Кровля — мембранная система с утеплением 150 мм (пароизоляция, базальтовый утеплитель, гидроизоляция), уложенная с соблюдением всех требований к герметичности и вентиляции

2. Административно-бытовой корпус (АБК)

· Размеры: 42,0 × 11,4 м

· Высота: 5,8 м

· Конструкция: каркас из гнутозамкнутого профиля с шарнирным сопряжением балок и жёстким защемлением колонн в фундамент

· Фасады и кровля:

— Наружные стены — трёхслойные сэндвич-панели (150 мм)

— Витражи и окна — из алюминиевых систем

— Кровля — плоская, неэксплуатируемая, с мембранной гидроизоляцией и организованным водостоком

· Интерьер: внутренние перегородки по системе Knauf, коммуникации в каркасных шахтах с огнезащитным заполнением

Технические и нормативные характеристики

· Класс функциональной пожарной опасности: Ф3.6

· Степень огнестойкости: II

· Конструктивная пожарная опасность: С0

· Класс пожарной опасности конструкций: К0

· Срок службы здания: не менее 50 лет

· Уровень ответственности: нормальный (по ГОСТ 27751-2014)

· Объект не подлежит категорированию по взрывопожарной опасности

Почему это важно?

Проект сочетает энергоэффективность, быстрые сроки строительства и высокий уровень комфорта для спортсменов и посетителей. Благодаря применению проверенных решений МС БИЛДИНГС — включая собственные конструктивные схемы и качественные ограждающие системы — центр будет соответствовать всем требованиям к современным спортивным объектам, включая круглогодичную эксплуатацию и прохождение государственной экспертизы.

Строительство ведётся собственными силами компании — без привлечения субподрядчиков, что гарантирует чёткое соблюдение сроков, бюджета и качества на всех этапах.


«Старт строительных работ — это всегда знаковый этап, — комментирует представитель компании «МС Билдингс». — Мы применяем проверенные технологии быстровозводимого строительства, которые позволяют обеспечить высокое качество, долговечность и безопасность объекта при оптимальных сроках реализации. Новый центр станет современной спортивной площадкой для москвичей».

Компания «МС Билдингс» продолжает работу, обеспечивая полный цикл — от проектирования до сдачи объекта «под ключ».