Компания МС Билдингс завершила разработку проектной документации на строительство теннисного центра
Компания МС Билдингс завершила работы по подготовки необходимого пакета проектной документации для свозведения некапитального спортивного объекта «Некапитальный спортивно-культурный комплекс» в г. Москва.
Концепция разработана на установку не капитального спортивного объекта. Место для физкультурно-оздоровительного комплекса располагается на свободном от застройки участке, с умеренным уклоном с отметками от 31.39-128.58
Проект разработана с целью привлечения посетителей различных возрастных категорий, предпочитающих активный образ жизни и занятия большим теннисом.
Архитектурно-планировочные рещения.
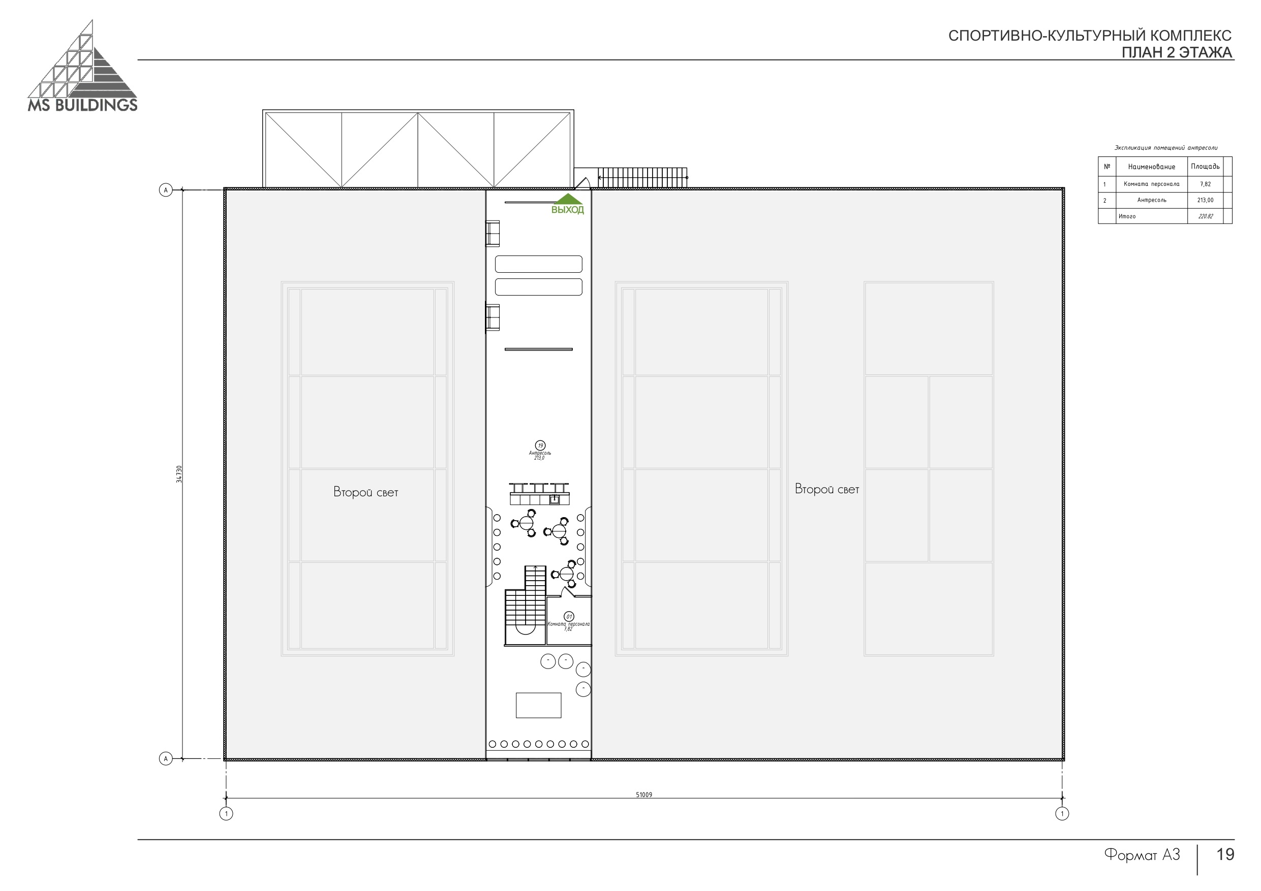
Проектируемое сооружение одноэтажное, состоит из трех функциональных зон:
- административно-бытовая встройка с антресолью размерами 4,0х34,7м;
- теннисный манеж размерами 35,03х51,3м (сборно-разборного типа конструкций), с двумя полями для тенниса размерами 10,97х23,77м и одним полем 8,23х23,77. Высота здания- 14,10м.
- технические и адм. помещения в пристройке, размером 4,75х18,9м., высотой 4,97м по парапету.
Комплекс здания функционально поделен на две части:
-пространство для игры в теннис;
-АБК (административно-бытовая часть).
Фасады здания решены в локоничных, соотвествущих функциональному назначению объекта формах. Облицовка сэндвич панели RAL 6002, RAL 2011, RAL 9003 (Техностиль) и ВНФ с облицовкой из композита. Профиль дверей, витражей и окон RAL 9004. Кровля RAL 6002.
Главный вход в здание предусмотрен через АБК с продольной стороны здания, условно по центру. Из манежа предусмотрено несколько эвакуационных равноудаленных выходов (не менее двух их каждой зоны).
В АБК предусмотрено по две раздевалки для взрослых (мужская и женская)с отдельными душевыми и с/у; одна раздевалка для детей; тренерская с собственной раздевалкой, душевой и с/у; кабинет первой помощи; ресепшен с зоной отдыха; универсальный с/у; КУИ; электрощитовая, тепловой и водомерный узел, итп; на антресоли предусмотрена зона отдыха для посетителей; место приема пищи; помещение для персонала.
Антресоль имеет ограждение в виде перил на высоте 1,2м, а также, ограждается защитной сеткой.
Конструктивные решения.
Фундамент комплекса: основанием спортивного сооружения является железобетонная монолитная плита пола, с заглублением не более 0,5м.
Конструктивная схема административно бытовой части здания выполнена из сборно-разборного металлического каркаса на болтовых соединениях, перекрытие монолитное железобетонное по несъемной опалубке. Покрытие здания плоская кровля по профлисту с утеплением и гидроизоляционным слоем из мембраны.
Конструктивная схема спортивной части здания выполнена из сборно-разборного металлического каркаса на болтовых соединениях. Арки выполнены из профильных труб различного сечения. Каркас ангара имеет арочную разборную однопролетную конструкцию. Сварочные материалы и технологии отвечают требованиям СП 16.13330.2017 (СНиП 11-23-81*). Качество отчистки поверхности от жировых загрязнений соотвествует второй степени обезжиривания по ГОСТ 9.402. Изготавливается из стали марки С245(ст3).
Размещение и установка на территории города Москвы объектов некапитальных объектов (временное и круглогодичное использование) регламентируется постановлением Правительства Москвы № 636-ПП. Согласование установки некапитальных объектов имеют упрощенный порядок, что позволяет в кратчайшие сроки реализовывать благоустройство территории, возведение спортивных объектов, возведение пунктов технического осмотра и ремонта транспортных и прочее.
Возможность размещения любых некапитальных объектов рассматривается на заседании Межведомственной комиссии по вопросу размещения отдельных объектов, не являющихся объектами капитального строительства, на территории города Москвы (далее - Межведомственная комиссия). Для подачи заявки необходимо подготовить проект размещения некапитального объекта (подготовительный и основной).
Постановление Правительства Москвы № 636-ПП устанавливает состав проекта размещения объекта:
• Пояснительная записка;
• Ситуационный план в масштабе 1:2000;
• Дендроплан и ведомость существующих зеленых насаждений;
• Генеральный план в масштабе 1:500;
• Фотофиксация территории земельного участка с указанием положения фиксации;
• Фотомонтаж (3D визуализация);
• План организации размещения ОНКС (при необходимости).
• Проект размещения некапитального объекта должен соответствовать:
• Строительным нормам и правилам
• Государственным стандартам
• Сводам правил
• Федеральному закону от 22 июля 2008 г. N 123-ФЗ "Технический регламент о требованиях пожарной безопасности"
• Санитарно-эпидемиологических правилам и нормативов 2.2.1/2.1.1.1200-03 "Санитарно-защитные зоны и санитарная классификация предприятий, сооружений и иных объектов"
• Постановлению Правительства Москвы от 25 января 2000 г. N 49 "Об утверждении Норм и правил проектирования планировки и застройки Москвы МГСН 1.01-99",
• Постановлению Правительства Москвы от 6 августа 2002 г. N 623-ПП "Об утверждении Норм и правил проектирования комплексного благоустройства на территории города Москвы МГСН 1.02-02" и так далее.
Результатом согласования является внесение Департаментом городского имущества в договор аренды соответствующих изменений, касающихся разрешения размещения некапитальных объектов. Наша компания имеет положительный опыт составления проектов размещения некапитальных объектов.

















